Deprecated: rtrim(): Passing null to parameter #1 ($string) of type string is deprecated in /home/nc351b5/devpub_html/wp-includes/formatting.php on line 2837
East Van Corner Lot
  • RENTED

Description

Submit Viewing Request Below

Why do we request this information?

The information we have requested will help ensure you meet the initial rental requirements before viewing the property. We are happy to suggest other similar properties that you may qualify to rent. Note that this is not an application to rent the property.

We take your personal information seriously

Your personal information provided here will not be shared with any third party company or service nor will we use your information for marketing purposes. Your information will be deleted from our system after 10 days.

Read More

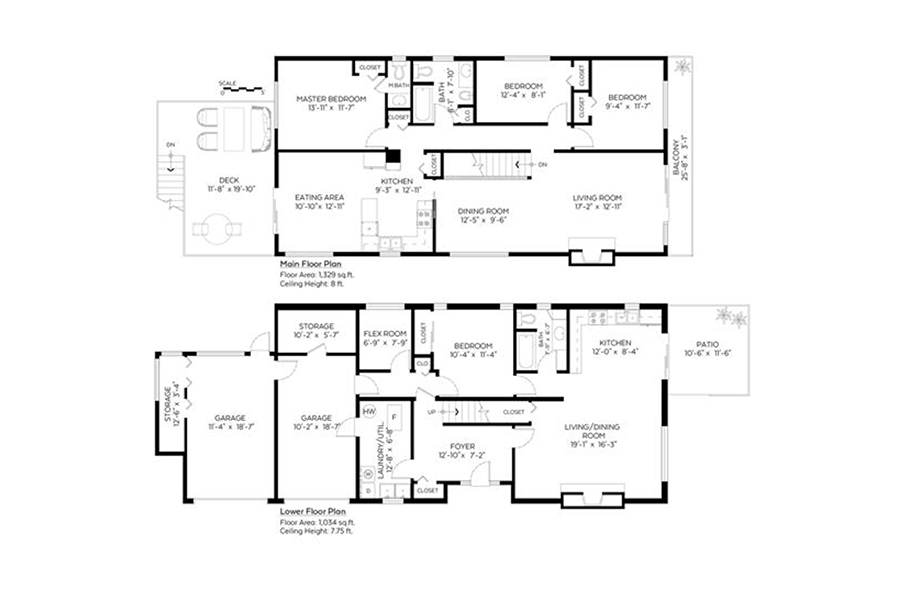
Entire House on Corner Lot in East Van

Features include original character details, two wood burning fireplaces, two full kitchens, flex room with windows, perfect for an office, spacious dining rooms, primary bedroom with ensuite bathroom, laundry room with washer and dryer, 120 sq ft outdoor deck, 2 separate enclosed garages, and south facing backyard.

Utilities Included:

Water. All other utilities, cable/internet and yard maintenance is tenant’s responsibility.

Lease Terms
Minimum one year lease to start.
1/2 month security deposit required.
Tenants are required to obtain sufficient insurance to cover personal belongings against loss or damage from any cause and for third party liability.
Quiet and responsible tenants preferred.
Reference and credit checks required.
No smoking.

Details

4 Bedrooms
2.5 Bathrooms
Property Size 2363 sqft
2 Garages

Address

  • Address: E 3rd Ave and Semlin Dr
  • City: Vancouver
  • Province: British Columbia
  • Postal Code: V5N 1H5
  • Area: East Vancouver

Compare listings

Compare